클린룸이라 하면 반도체, 식품, 전자등의 분야에서 많이 사용되지만 최근엔 일반 제조공장에서도 많이 사용되고 있습니다. 쾌적한 환경, 오염물질등 제조품의 불량률 방지, 냉난방의 효율성 증대등을 위해 적용되고 있습니다. 일반적인 공장에서는 10,000CLASS정도의 크린룸보다는 준크린룸 형식으로 공사가 진행되는 경우가 많습니다.
마스크, 의약외품들도 준크린룸에서 생산을 하여야 하고, 식품회사들도 해썹 적용을 받기위해서는 준크린룸시설을 통하여 생산공정이 이루어집니다.

클린룸 시설 인정기준
기본적으로 준크린룸의 시설의 경우
1)난연제품 판넬 시공
2)알루미늄 또는 스텐 몰딩 사용
3)몰드와 판넬 결합시 리벳사용
4)판넬과 판넬사이, 판넬과 알루미늄이나 스텐 몰딩에 바이오실리콘 사용
5)값비싼 공조설비보다 급배기 설비, 냉난방장치가 설치되면 준크린룸 시설이 될 수 있음
전등과 소방 , 공조등의 작업이 완료되어지면 실리콘 작업을 합니다.
클린룸 시공시 사용되는 다양한 부자재를 소개합니다. 일반적으로 크린룸 시공시 코너마감용으로 라운드앵글 코너포인트등이 사용되고 벽체나 천정고정시 양날베이스 티바 앵글등이 사용됩니다.
해썹 연구소 식품공장등 크린룸공사 내부 마감재로 사용되는 부자재는 T바 U바 앵글 양날베이스 편날베이스 라운드몰드 코너포인트 라운드앵글등 다양합니다
클린룸 공사 시공순서
1) 먹메김
2) 발주처 확인
3) 바닥 베이스시공
4) 벽체판넬시공
5) 전산볼트 및 상부 베이스 시공
6) 천정판넬시공
7) 도어류 시공
8) 전기 및 소방공사 실시
9) 바이오실리콘작업
10)현장마무리

알루미늄 부자재 - 엠제이산업
크린룸공사 판넬공사에 사용되는 부자재 종류





















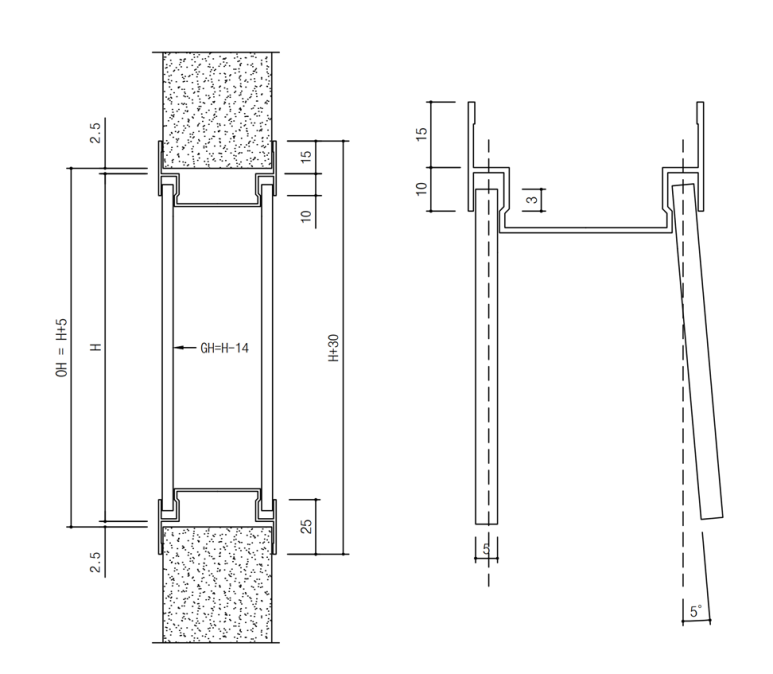
클린룸 판넬 앵글 시공도면 및 설치방법
판넬공사나 크린룸공사에는 알루미늄 소재로 제작된 양날베이스 라운드앵글 픽스바 코너포인트 T바 앵글 픽스바등이 사용되며 기타 크린룸 전용 창문 도어등이 사용됩니다.
1) 양날베이스
양날베이스는 크린룸 시공시 2곳의 공간을 분리하는 벽체를 만들때 사용하는 부자재로
유바형태에 라운드앵글이 양쪽에 붙어 있어 따로 라운드앵글을 시공할 필요가 없는 시공이 간편한 부자재입니다.




2) 라운드앵글
라운드앵글은 크린룸 시공시 코너부분에 사용하는 부자재로 코너부분에 먼지가 쌓이는 것을
방지시키는 부자재입니다.




3) 픽스바
크린룸 시공시 창문을 달때 사용하는 부자재입니다.
싱글이나 더블유리를 사용하거나 폴리카보네이트를 사용하여 창문을 만듭니다.



4) T 바
천정에 판넬을 메달때 사용되는 부자재로 판넬의 두께에 따라 다양한 T바가 사용됩니다


크린룸 시공부자재
당사는 크린룸 시공을 위한 알미늄 부자재 이외에 여러 자재를 취급합니다
크린룸 부자재는 아래페이지 참조바랍니다
클린룸에 사용되는 부자재
크린룸에 사용되는 부자재는 일반적으로 아래와 같습니다 1) 전산볼트 - 1m / 2m / 3m 일반적으로 전산볼트는 3/8전산볼트인 삼부짜리가 많이 사용됩니다 전산볼트 길이도 다양하기 때문에 공사
mjint.tistory.com
크린룸 도어는 아래를 참조해 주세요




U바 우레탄 U바 1/2베이스 낮은 양날베이스 양날베이스 편날베이스 앵글 럭키몰드 T바 이중T바 J몰딩 라운드몰드 라운드앵글 코너라운드몰드 그바 코너포인트 코너포인트소 코너포인트대 알루미늄부자재 크린룸부바재 클린룸 크린룸부자재 알루미늄부자재 코너포인트 크린룸알미늄 1/2베이스 100T유바 30T유바 40T유바 50T유바 52T유바 75T유바 HACCP HACCP자재 J몰드 J몰딩 T바 U바 그바 낮은양날베이스 라운드몰드 라운드몰딩 라운드앵글 럭키몰드 마감바 베이스 부자재 시공부자재 알루미늄마감재 알루미늄부품 알루미늄자재 알미늄자재 앵글 양날베이스 엘바 외날베이스 우레탄U바 유바 이중T바 코너라운드몰드 코너포인트대 코너포인트소 크린룸 크린룸공사자재 크린룸알루미늄 클린룸 클린룸알루미늄 클린룸알미늄 판넬 판넬부자재
'건축자재 > 알루미늄 프로파일 - 사각 원형 잔넬 봉' 카테고리의 다른 글
| 이중티바 시공방법 (0) | 2025.11.29 |
|---|---|
| 알루미늄부자재 코너시공 라운드포스트 (1) | 2024.12.13 |
| 알미늄부자재 클린룸부자재 (0) | 2024.09.14 |
| 알루미늄 부자재 시공방법 (0) | 2024.03.23 |
| 알루미늄 브라켓 잔넬 슬리브 (0) | 2024.01.14 |