알루미늄 부자재 사용법
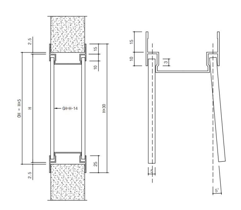
1) 양날베이스
양날베이스는 크린룸 시공시 2곳의 공간을 분리하는 벽체를 만들때 사용하는 부자재로
유바형태에 라운드앵글이 양쪽에 붙어 있어 따로 라운드앵글을 시공할 필요가 없는 시공이 간편한
부자재입니다.




2) 라운드앵글
라운드앵글은 크린룸 시공시 코너부분에 사용하는 부자재로 코너부분에 먼지가 쌓이는 것을
방지시키는 부자재입니다.




3) 픽스바
크린룸 시공시 창문을 달때 사용하는 부자재입니다.
싱글이나 더블유리를 사용하거나 폴리카보네이트를 사용하여 창문을 만듭니다.



4) T 바
천정에 판넬을 메달때 사용되는 부자재로 판넬의 두께에 따라 다양한 T바가 사용됩니다



'건축자재 > 알루미늄 프로파일 - 사각 원형 잔넬 봉' 카테고리의 다른 글
| 크린룸 클린룸 알루미늄 부자재 설치방법 (3) | 2024.12.13 |
|---|---|
| 알미늄부자재 클린룸부자재 (0) | 2024.09.14 |
| 알루미늄 브라켓 잔넬 슬리브 (0) | 2024.01.14 |
| 클린룸에 사용되는 부자재 (2) | 2023.12.05 |
| 클린룸 코너마감 시공방법 (2) | 2023.12.05 |