알루미늄 및 스텐 공조기제품으로 알루미늄 그릴 레지스터 셔터그릴 점검구 통풍루버 에어컨루버 환기창 스텐창 공조창 배연창 실외기 환기구 보일러 욕실 에어컨루버 통풍구 산업환기 방음창등이 있습니다.
[알루미늄그릴]
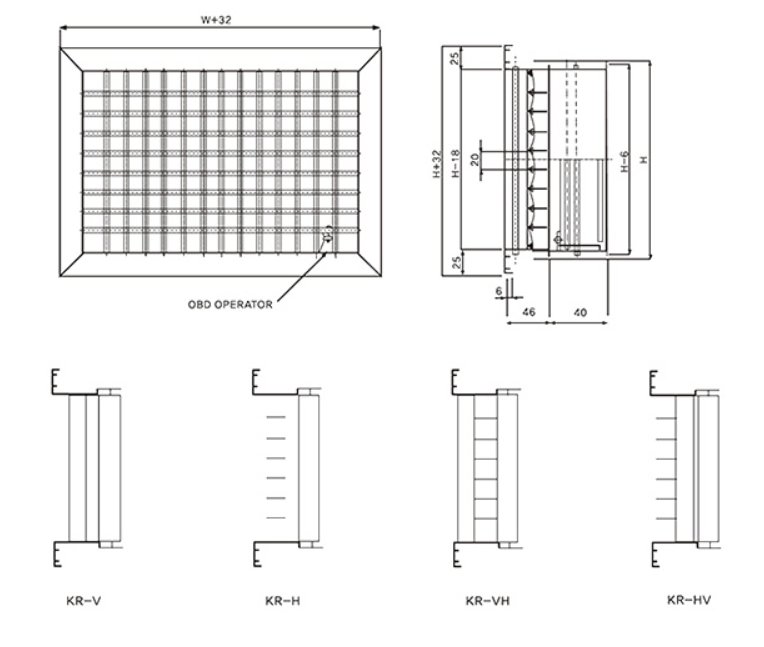
1)기능 : 수평 뿐 아니라 수직면으로도 공기의 흐름이 조절이 가능한 것으로 실내의 작업 여건이나
실내 조건등에 변화에 의하여 공기의 흐름을 변화 할 수 있는 BAR가 수평면과 수직면 있는 형태
- OVERLAP MARGIN : 25, 30mm 폭으로 제작
2) 재질 :
날개 -알루미늄 6063-T5 BAR를 20mm 간격으로 제작하여, 폭(W) 600mm 마다 보강
프레임 – 알루미늄 6063-T5를 절단하여 FRAME을 조립
3) BAR의 변위(Deflection) :
GRILLE BAR는 수평으로 0도에서 100도까지 수직으로 30도까지 BAR의 조절이 가능
4) 마감 : 아노다이징, 분체도장
5) 기타재질 : 알루미늄 , 스틸, 스텐
6) 사이즈 : 주문제작 - 요청사이즈로 제작


[알루미늄 레지스터]
1)기능 :
Grille의 역할을 하면서, 동시에 뒷부분에 설치괸 OPPOSED BLADE Damper를 이용하여 공기량 조절까지도 할 수 있는 기구.
2) 전면 수평형(HV형) : 수평 bars가 앞쪽에 있고, 수직 bars가 뒤쪽에 있음, 수평 및 수직 방향으로 공기 흐름의 방향 조절이 가능한 형
2) 재질 :
날개 -알루미늄 6063-T5 BAR를 20mm 간격으로 제작하여, 폭(W) 600mm 마다 보강
프레임 – 알루미늄 6063-T5를 절단하여 FRAME을 조립
3) 마감 : 아노다이징, 분체도장
4) 기타재질 : 알루미늄 , 스틸, 스텐
5) 사이즈 : 주문제작 - 요청사이즈로 제작




[알루미늄 셔터그릴]
1)기능 : 날개 살이 격자로 되어있는 그릴의 종류이며, 수동으로 후면 날개를 개폐할 수 있다.
공기의 흐름 및 풍량 조절에 용이하며 전면에는 핸들이 부착돼 있어 핸들 손잡이로 쉽게 작동
2) 마감 : 아노다이징, 분체도장
3) 기타재질 : 알루미늄 , 스텐
4) 사이즈 : 주문제작 - 요청사이즈로 제작

[알루미늄 그릴점검구]
1)기능 : 외곽 프레임 내 자석을 부착하여 전면에서 탈부착을 할 때에 용이한 제품.
일반 GRILLE(그릴) 일 경우, DUCT 내 점검 상황 이나 청소가 필요할 때 고정된 피스를 풀어야 되지만
점검구 그릴의 특징은 고정된 피스를 풀지 않고 손쉽게 탈부착을 할 수 있다는 장점이 있음.
2) 마감 : 아노다이징, 분체도장
3) 기타재질 : 알루미늄 , 스텐
4) 사이즈 : 주문제작 - 요청사이즈로 제작

[알루미늄 루버 -공조용]
1)기능 : 흡입 및 배기용으로 사용할 수 있도록 설계되어 있으며 견고하고 외관이 깨끗하여
산업용 건물의 외벽에 사용.
전천후에 효과적으로 보호하도록 BLADE 및 FLAME을 알루미늄으로 두껍게 압축하여 제작.
FLAME은 세가지 형태로 제작되어 벽돌, 금속판넬, 콘크리트, 나무등 어떠한 벽에도 시공가능.
2) 마감 : 아노다이징, 분체도장
3) 기타재질 : 알루미늄 , 스텐
4) 사이즈 : 주문제작 - 요청사이즈로 제작



[알루미늄 세트루버 -공조용]
1)기능 : 일반 louver와 성능은 동일하며, 세트루버의 특징은 루버의 제품 특성상 기역 자 Frame 형태로
전면 이미지는 문제점이 없지만 제품 후면 부는 이질적으로 보일 수가 있음.
그 문제점을 보안하기 위한 제품이며 보통 사람들의 시선이 직접적으로 닿는 도어에 환풍 역할을 위해 설치
2) 마감 : 아노다이징, 분체도장
3) 기타재질 : 알루미늄 , 스텐
4) 사이즈 : 주문제작 - 요청사이즈로 제작

[통풍루버 - 트렌스퍼그릴]
1)기능 : 은폐형 Transfer Door Grilles는 V자 또는 ( 자 형태로 고정 Louvers가 수평 방향으로 되어 있으며,
이 Transfer Grilles는 2Set를 겹쳐서 설치하며 광선을 완전하게 차단이 가능면 뿐만 아니라
일반적인 배기 및 Return Grill로 광범위하게 사용.
2) FRAME : Aluminum을 압축하여 25mm 폭으로 되어 있음.
V-형태 LOUVER : 전면에는 나사로 설치하도록 Counter Sunk로 되어 있음.
최대사이즈 : 900mm x 600mm
3) 마감 : 아노다이징, 분체도장
4) 기타재질 : 알루미늄 , 스텐
5) 사이즈 : 주문제작 - 요청사이즈로 제작



[알루미늄 에어콘루버 ]
1)기능 : 에어컨 루버 (AC LOUVER)의 특징은 수동으로 날개를 원하는 방향과 원하는 날개 수량만큼 작동 .
날개는 360º 까지 회전 가능하며 공기의 흐름 및 풍량 조절에 용이한 제품이다.
2) 마감 : 아노다이징, 분체도장
3) 기타재질 : 알루미늄 , 스텐
4) 사이즈 : 주문제작 - 요청사이즈로 제작

[알루미늄 환기창 ]
1)기능 : 환기창은 빛 과 열 바람등과 같이 외부로부터 충격을 줄 수 있는 높은 강도에도 사용하는 제품임.
주로 건물외벽, 공조실 외벽, 주차장, 배기구, 흡입구 등 다양한 시설에 설치가 가능.
또한 외벽의 인테리어 효과까지 더해주며 환기 및 외부 유입물 차단에도 용이하다.
2) Frame : 45/100 , 30/80 , 30/50 .
3) 기타재질 : 알루미늄 , 스텐
4) 사이즈 : 주문제작 - 요청사이즈로 제작

알루미늄공조기 알루미늄그릴 그릴 알루미늄레지스터 셔터그릴 셧터그릴 셔터 점검구 점검구그릴 알루미늄점검구 통풍그릴 공조그릴 알루미늄루버 흡배기용루버 공조루버 루버 공조루버 갤러리창 환기창
그릴창 시스템루바 배연창가격 배연창설치 알루미늄갤러리 환기설비 자동천창 알미늄그릴 실외기루버창 배연창수리 루바시공 실외기창문 실외기창 배연창개폐기 슬라이딩배연창 배연창시공 실외기실루버창 실외기실루버 배연창설치기준 배연창 카우보이문 공장환기 제연창 에어컨루바 환기루버 공장환기시스템 오피스텔배연창 갤러리도어 샷시부속 실외기그릴창 실외기실그릴창 에어컨실외기창 실외기실창 공장환기창 자동루바 실외기실창문 실외기실갤러리창 창문환기 알루미늄그릴 환기그릴 환기구 사무실환기 내풍압셔터 통풍루버 AL루버 알루미늄갤러리창 샷다 알루미늄셔터 AL그릴 환기루바 환기창호 공장창문 개폐식루버 루버방충망 수동루버 실외기실자동루버 실외기루버 수동루바 아파트실외기실 루버창설치 에어컨루버 실외기실환풍기 자연환기창 아파트환기창 에어컨연동루버 실외기샷시 루바창문 개폐형루버 알루미늄그릴창 알루미늄루버창 실외기실갤러리 갤러리방충망 그릴방충망 실외기실루버방충망 알미늄그릴창 알미늄갤러리창 루버창제작 배연창문 공장환기기술 실외기갤러리창 실외기갤러리 이중창배연창 윈도우셔터 주차장환기구 알루미늄환기구 외부환기구 자연환기구 사각환기구 조적환기구 주차장루바 환기커버 스텐환기구 스텐그릴 배연창교체 스텐루바 원형환기구 자동환기창문 셔터문 금속루바 산업환기 공장환풍 창고환기
'건축자재 > 알루미늄 창호' 카테고리의 다른 글
| 미서기창 슬라이딩창 sliding window 알루미늄창 (2) | 2023.07.10 |
|---|---|
| pvc창 프로젝트창 pj창 project window PJ (0) | 2023.07.10 |
| 에어콘루버 에어컨루버 알루미늄루버 알루미늄에어콘루버 공조루버 통풍루버 갤러리창 환기구창 알루미늄환기창 환기구 통풍창 (0) | 2023.05.17 |
| 알루미늄루버 흡배기용루버 공조루버 루버 공조루버 갤러이창 겔러리창 겔러리루버 공조창 세트루버 셋트루버 통풍루버 트랜스퍼그릴 (0) | 2023.05.17 |
| 알루미늄 셔터그릴 셧터그릴 셔터 알루미늄그릴 그릴 점검구 점검구그릴 알루미늄점검구 통풍그릴 공조그릴 점검구 (0) | 2023.05.17 |