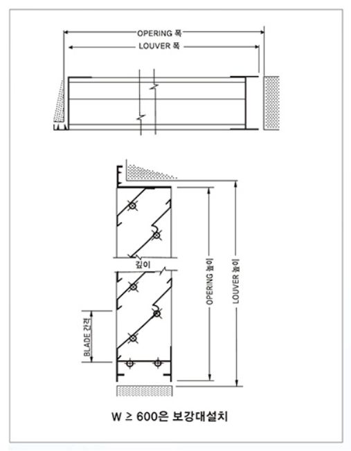
[알루미늄 루버 -공조용]
1)기능 : 흡입 및 배기용으로 사용할 수 있도록 설계되어 있으며 견고하고 외관이 깨끗하여
산업용 건물의 외벽에 사용.
전천후에 효과적으로 보호하도록 BLADE 및 FLAME을 알루미늄으로 두껍게 압축하여 제작.
FLAME은 세가지 형태로 제작되어 벽돌, 금속판넬, 콘크리트, 나무등 어떠한 벽에도 시공가능.
2) 마감 : 아노다이징, 분체도장
3) 기타재질 : 알루미늄 , 스텐
4) 사이즈 : 주문제작 - 요청사이즈로 제작



[알루미늄 세트루버 -공조용]
1)기능 : 일반 louver와 성능은 동일하며, 세트루버의 특징은 루버의 제품 특성상 기역 자 Frame 형태로
전면 이미지는 문제점이 없지만 제품 후면 부는 이질적으로 보일 수가 있음.
그 문제점을 보안하기 위한 제품이며 보통 사람들의 시선이 직접적으로 닿는 도어에 환풍 역할을 위해 설치
2) 마감 : 아노다이징, 분체도장
3) 기타재질 : 알루미늄 , 스텐
4) 사이즈 : 주문제작 - 요청사이즈로 제작

[통풍루버 - 트렌스퍼그릴]
1)기능 : 은폐형 Transfer Door Grilles는 V자 또는 ( 자 형태로 고정 Louvers가 수평 방향으로 되어 있으며,
이 Transfer Grilles는 2Set를 겹쳐서 설치하며 광선을 완전하게 차단이 가능면 뿐만 아니라
일반적인 배기 및 Return Grill로 광범위하게 사용.
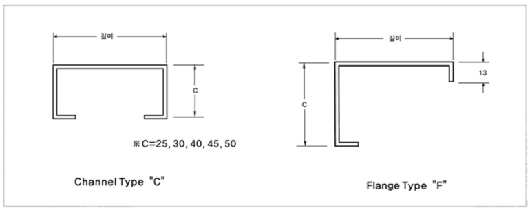
2) FRAME : Aluminum을 압축하여 25mm 폭으로 되어 있음.
V-형태 LOUVER : 전면에는 나사로 설치하도록 Counter Sunk로 되어 있음.
최대사이즈 : 900mm x 600mm
3) 마감 : 아노다이징, 분체도장
4) 기타재질 : 알루미늄 , 스텐
5) 사이즈 : 주문제작 - 요청사이즈로 제작



[점검구 루버]
1)기능 : 점검구와 루버의 기능을 결합한 기능성제품
2) 마감 : 아노다이징, 분체도장
3) 기타재질 : 알루미늄 , 스텐
4) 사이즈 : 주문제작 - 요청사이즈로 제작


알루미늄루버 흡배기용루버 공조루버 루버 공조루버 갤러이창 겔러리창 겔러리루버 공조창 세트루버 셋트루버 통풍루버 트랜스퍼그릴 알루미늄공조기 알루미늄그릴 그릴 알루미늄레지스터 셔터그릴 셧터그릴 셔터 점검구 점검구그릴 알루미늄점검구 통풍그릴 공조그릴 알루미늄루버 흡배기용루버 공조루버 루버 공조루버 갤러리창 환기창 그릴창 시스템루바 배연창가격 배연창설치 알루미늄갤러리 환기설비 자동천창 알미늄그릴 실외기루버창 배연창수리 루바시공 실외기창문 실외기창 배연창개폐기 슬라이딩배연창 배연창시공 실외기실루버창 실외기실루버 배연창설치기준 배연창 카우보이문 공장환기 제연창 에어컨루바 환기루버 공장환기시스템 오피스텔배연창 갤러리도어 샷시부속 실외기그릴창 실외기실그릴창 에어컨실외기창 실외기실창 공장환기창 자동루바 실외기실창문 실외기실갤러리창 창문환기 알루미늄그릴 환기그릴 환기구 사무실환기 내풍압셔터 통풍루버 AL루버 알루미늄갤러리창 샷다 알루미늄셔터 AL그릴 환기루바 환기창호 공장창문 개폐식루버 루버방충망 수동루버 실외기실자동루버 실외기루버 수동루바 아파트실외기실 루버창설치 에어컨루버 실외기실환풍기 자연환기창 아파트환기창 에어컨연동루버 실외기샷시 루바창문 개폐형루버 알루미늄그릴창 알루미늄루버창 실외기실갤러리 갤러리방충망 그릴방충망 실외기실루버방충망 알미늄그릴창 알미늄갤러리창 루버창제작 배연창문 공장환기기술 실외기갤러리창 실외기갤러리 이중창배연창 윈도우셔터 주차장환기구 알루미늄환기구 외부환기구 자연환기구 사각환기구 조적환기구 주차장루바 환기커버 스텐환기구 스텐그릴 배연창교체 스텐루바 원형환기구 자동환기창문 셔터문 금속루바 산업환기 공장환풍 창고환기 점검구루버 루버점검구 점검구배기창