블라인드 루버는 루버에 각도를 주어 차양, 풍량조절 , 사생활보호등 다양한 역할을 하는 루버를 말합니다.
최근에 외장재 경향은 단순한 사각루버가 아니라 블라인드 루버를 사용하여 다양한 디자인과 기능을 추구하는 건물 외관을 만드는것이 일반화 되고 있습니다.

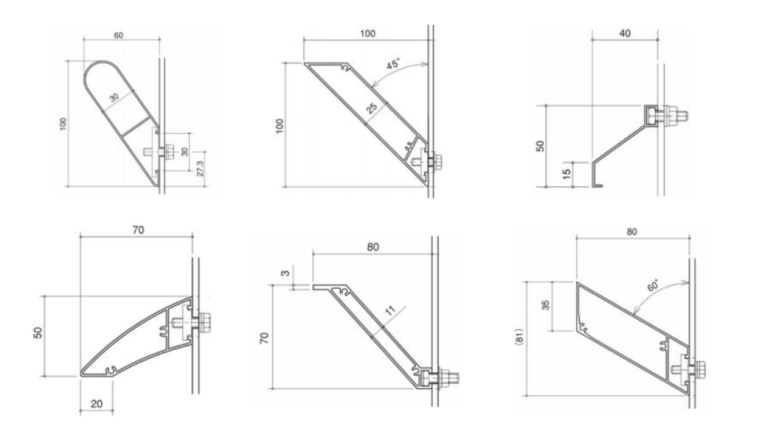
블라인드 루버 종류 - 엠제이산업
블라인드 루버는 위의 도면에서 보는형태 뿐만 아니라 설계자가 원하는 매우 다양한 디자인으로 제작될수 있습니다. 위의 도면 종류는 단지 예시일 뿐입니다.

블라인드루버 도면 - 엠제이산업
위의 사진에서 보듯이 블라인드 루버는 사선으로 설치되어 사행활을 보호하고 전방조망과 풍량조절, 차양기능까지 4가지 기능을 한꺼번에 수행하는 실용적인 제품입니다.

블라인드루버 - 엠제이산업
블라인드 루버는 사선으로 설치되는 만큼 일반적인 루버보다 측면풍압을 더 받게 됩니다.
이러한 이유로 일반적인 루버제품보다 고정력이 더 중요합니다.
또한 지진에 대비하여 내진설계와 내풍설계가 적용되어 자연재난에도 충분히 버틸수 있도록 개발되고 설치됩니다.

블라인드루버 커버 - 엠제이산업
루버의 마감면은 커버를 설치하여 빗물이나 이물질이 끼지 않도록 하였습니다.

블라인드루버 - 엠제이산업
블라인드 루버는 국내에서도 많이 설치되지만 일본이나 미국으로 많이 수출됩니다.
다양한 색상의 도장이 가능하고 무엇보다도 내진, 내풍구조로 만들어져 어떠한 환경에서도 설치가 가능하여
루버 본연의 기능을 충분히 수행하기 때문입니다.
대부분의 루버는 루버에 고정브라켓을 끼우거나 고정브라켓을 벽체에 고정하여 시공하는데
블라인드 루버는 볼트 체결식으로 만들어져 외부 충격을 흡수하고 지진파에도 견딜수 있도록 고안되어 설치됩니다.
이러한 이유 때문에 일본처럼 지진이나 태풍등 자연 재해가 많은 나라는 외부의 충격으로 부터 창문이나 벽면을 보호하면서 프라이버시가 보장되는 블라인드 루버를 많이 사용합니다.
다양한 루버의 종류에 대해서는 아래를 참조 바랍니다
알루미늄 루바의 종류
알미늄 루바 [루버의 의미]길고 가는 평판을 수평이나 수직 혹은 격자 모양으로 개구부의 앞면에 설치하여 직사광이나 비를 막고, 통풍이나 환기를 목적으로 하며, 공기 조화에서는 외기 흡입
mjint.tistory.com
원하시는 다양한 형태의 루버를 제작 생산합니다.
많은 문의 바랍니다.
엠제이이엔씨 & 엠제이산업
063-246-2524
mjint22@naver.com
'건축자재 > 알루미늄 루버' 카테고리의 다른 글
| 블라인드 루버 - 서울 종합전시장 시공 (0) | 2025.09.14 |
|---|---|
| 알루미늄 루바 시공사례 - 연구소 신축 (0) | 2025.09.13 |
| 알루미늄 루바의 종류 (1) | 2025.06.03 |
| 스크린루바 시공사례 - 건강생활지원센타 (1) | 2025.06.03 |
| 알루미늄 루바 미국 수출 (0) | 2025.05.11 |