루버의 큰 장점은 건물에 차양기능을 통해서 사생활보호와 건물온도를 낮추어주는것 이외에 깔끔한 디자인을 통해서 심리적인 안정감을 준다는 것입니다.
이러한 이유 때문에 많은 건설현장에서 사용되고 있습니다.
루버는 도장형태에 따라 외부형과 내부형으로 구분될수 있는데 이번에 소개해드릴 현장은
관급공사로 바로 경찰서입니다.
살아가면서 경찰서를 몇번이나 가볼까? 생각하지만 시공을 하러 다니면 상당히 많은 경찰서를 방문하게 됩니다. 그 만큼 많은 관공서에서 루버가 다양한 형태로 사용됩니다.

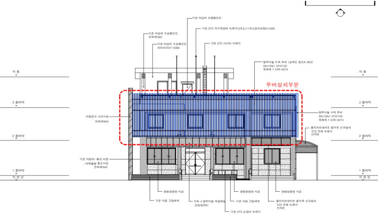
엠제이산업 - 루버도면
설계초기에 도면은 건물 상부에 루버를 설치하는 게획이었고 색상을 어느 것으로 하는 것이 좋을지 많은 협의가 있었습니다. 무엇보다도 경찰서라는 부담스러운 장소라기 보다는 좀 더 시민들에게 다가가기 편한 경찰서의 이미지를 만드는 것이 중요하다는 의견이 많아서 목무늬 도장 루버로 결정되었습니다.
루버의 종류와 형태 그리고 도장에 대해서 자세한 사항은 아래를 참조바랍니다
알미늄 루버 종류
알루미늄 루버 리스트 알루미늄 스크린루버는 다양한 사이즈가 사용됩니다 일반적으로 루버의 사이즈는 폭(W)*높이(H)*길이(L)에 따라 다양하게 분류됩니다 길이(L)의 경우 원하는 사이즈에 맞게
mjint.tistory.com

엠제이이엔씨 시공사례 - 경찰서
전체적인 시공 모습은 위의 사진처럼 완료되었습니다. 목무늬로 시공되었고 전체적으로 깔끔한 이미지로 완성되었습니다.

엠제이이엔씨 루버시공
관급공사는 시험성적서가 필수인데 당사는 모든 성적서를 가지고 잇습니다.
당사는 발주처에서 원하는 형태와 색상으로 맞춤제작합니다.
'국내시공사례' 카테고리의 다른 글
| 알루미늄 골강판 시공 - 고급펜션 (0) | 2025.09.13 |
|---|---|
| 스크린루바 - 병원시공사례 (0) | 2025.09.13 |
| 루버강판 시공 - 상가시공 사례 (0) | 2025.09.13 |
| 알루미늄 사각바 사각루버 스크린루버 시공 설치 (2) | 2024.12.13 |
| 농협 저온창고 크린룸 시공현장 알미늄부자재 (2) | 2024.09.14 |