알루미늄 및 스텐 공조기제품으로 알루미늄 그릴 레지스터 셔터그릴 점검구 통풍루버 에어컨루버 환기창 스텐창 공조창 배연창 실외기 환기구 보일러 욕실 에어컨루버 통풍구 산업환기 방음창등이 있습니다.
[알미늄그릴]
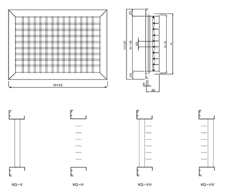
1)기능 : 수평 뿐 아니라 수직면으로도 공기의 흐름이 조절이 가능한 것으로 실내의 작업 여건이나
실내 조건등에 변화에 의하여 공기의 흐름을 변화 할 수 있는 BAR가 수평면과 수직면 있는 형태
- OVERLAP MARGIN : 25, 30mm 폭으로 제작
2) 재질 :
날개 -알루미늄 6063-T5 BAR를 20mm 간격으로 제작하여, 폭(W) 600mm 마다 보강
프레임 – 알루미늄 6063-T5를 절단하여 FRAME을 조립
3) BAR의 변위(Deflection) :
GRILLE BAR는 수평으로 0도에서 100도까지 수직으로 30도까지 BAR의 조절이 가능
4) 마감 : 아노다이징, 분체도장
5) 기타재질 : 알루미늄 , 스텐
6) 사이즈 : 주문제작 - 요청사이즈로 제작



[알루미늄 레지스터]
1)기능 :
Grille의 역할을 하면서, 동시에 뒷부분에 설치괸 OPPOSED BLADE Damper를 이용하여 공기량 조절까지도 할 수 있는 기구.
2) 전면 수평형(HV형) : 수평 bars가 앞쪽에 있고, 수직 bars가 뒤쪽에 있음, 수평 및 수직 방향으로 공기 흐름의 방향 조절이 가능한 형
2) 재질 :
날개 -알루미늄 6063-T5 BAR를 20mm 간격으로 제작하여, 폭(W) 600mm 마다 보강
프레임 – 알루미늄 6063-T5를 절단하여 FRAME을 조립
3) 마감 : 아노다이징, 분체도장
4) 기타재질 : 알루미늄 , 스틸, 스텐
5) 사이즈 : 주문제작 - 요청사이즈로 제작


[알루미늄 셔터그릴]
1)기능 : 날개 살이 격자로 되어있는 그릴의 종류이며, 수동으로 후면 날개를 개폐할 수 있다.
공기의 흐름 및 풍량 조절에 용이하며 전면에는 핸들이 부착돼 있어 핸들 손잡이로 쉽게 작동
2) 마감 : 아노다이징, 분체도장
3) 기타재질 : 알루미늄 , 스텐
4) 사이즈 : 주문제작 - 요청사이즈로 제작



[알루미늄 그릴점검구]
1)기능 : 외곽 프레임 내 자석을 부착하여 전면에서 탈부착을 할 때에 용이한 제품.
일반 GRILLE(그릴) 일 경우, DUCT 내 점검 상황 이나 청소가 필요할 때 고정된 피스를 풀어야 되지만
점검구 그릴의 특징은 고정된 피스를 풀지 않고 손쉽게 탈부착을 할 수 있다는 장점이 있음.
2) 마감 : 아노다이징, 분체도장
3) 기타재질 : 알루미늄 , 스텐
4) 사이즈 : 주문제작 - 요청사이즈로 제작


[알루미늄 루버 -공조용]
1)기능 : 흡입 및 배기용으로 사용할 수 있도록 설계되어 있으며 견고하고 외관이 깨끗하여
산업용 건물의 외벽에 사용.
전천후에 효과적으로 보호하도록 BLADE 및 FLAME을 알루미늄으로 두껍게 압축하여 제작.
FLAME은 세가지 형태로 제작되어 벽돌, 금속판넬, 콘크리트, 나무등 어떠한 벽에도 시공가능.
2) 마감 : 아노다이징, 분체도장
3) 기타재질 : 알루미늄 , 스텐
4) 사이즈 : 주문제작 - 요청사이즈로 제작



[알루미늄 세트루버 -공조용]
1)기능 : 일반 louver와 성능은 동일하며, 세트루버의 특징은 루버의 제품 특성상 기역 자 Frame 형태로
전면 이미지는 문제점이 없지만 제품 후면 부는 이질적으로 보일 수가 있음.
그 문제점을 보안하기 위한 제품이며 보통 사람들의 시선이 직접적으로 닿는 도어에 환풍 역할을 위해 설치
2) 마감 : 아노다이징, 분체도장
3) 기타재질 : 알루미늄 , 스텐
4) 사이즈 : 주문제작 - 요청사이즈로 제작

[통풍루버 - 트렌스퍼그릴]
1)기능 : 은폐형 Transfer Door Grilles는 V자 또는 ( 자 형태로 고정 Louvers가 수평 방향으로 되어 있으며,
이 Transfer Grilles는 2Set를 겹쳐서 설치하며 광선을 완전하게 차단이 가능면 뿐만 아니라
일반적인 배기 및 Return Grill로 광범위하게 사용.
2) FRAME : Aluminum을 압축하여 25mm 폭으로 되어 있음.
V-형태 LOUVER : 전면에는 나사로 설치하도록 Counter Sunk로 되어 있음.
최대사이즈 : 900mm x 600mm
3) 마감 : 아노다이징, 분체도장
4) 기타재질 : 알루미늄 , 스텐
5) 사이즈 : 주문제작 - 요청사이즈로 제작


[알루미늄 에어콘루버 ]
1)기능 : 에어컨 루버 (AC LOUVER)의 특징은 수동으로 날개를 원하는 방향과 원하는 날개 수량만큼 작동 .
날개는 360º 까지 회전 가능하며 공기의 흐름 및 풍량 조절에 용이한 제품이다.
2) 마감 : 아노다이징, 분체도장
3) 기타재질 : 알루미늄 , 스텐
4) 사이즈 : 주문제작 - 요청사이즈로 제작


[알루미늄 환기창 루버창 ]
1)기능 : 환기창은 빛 과 열 바람등과 같이 외부로부터 충격을 줄 수 있는 높은 강도에도 사용하는 제품임.
주로 건물외벽, 공조실 외벽, 주차장, 배기구, 흡입구 등 다양한 시설에 설치가 가능.
또한 외벽의 인테리어 효과까지 더해주며 환기 및 외부 유입물 차단에도 용이하다.
2) Frame : 45/100 , 30/80 , 30/50 .
3) 기타재질 : 알루미늄 , 스텐
4) 사이즈 : 주문제작 - 요청사이즈로 제작

'건축자재 > 알루미늄 창호' 카테고리의 다른 글
| 점검구의 종류 (0) | 2025.09.14 |
|---|---|
| 루버창 가사실창 환기창 블라인드창 (0) | 2024.12.13 |
| 알미늄 그릴창 공조창 환기창 (0) | 2024.07.16 |
| 알루미늄 공조기 레지스터 셔터그릴 점검구 맞춤제작 (1) | 2023.11.29 |
| 단열폴딩도어 폴딩도어 카페도어 (1) | 2023.11.12 |